廣州家裝住宅裝修設計方案 云山熹景許總雅居
面積 :150平平方米 / 地址 :廣州市白云區 / 點擊 :137
本案家裝住宅裝修設計項目采用現代中式風格古典風格與現代風格的激情碰撞,衍生出了無數素雅含蓄、簡約大氣的現代風格空間,呈現出了異常濃郁的東方情調。下面讓跟廣州裝修設計公司海博裝飾一起來看看本套方案吧。

家裝住宅裝修設計概念方案 徐總云山熹景家裝住宅

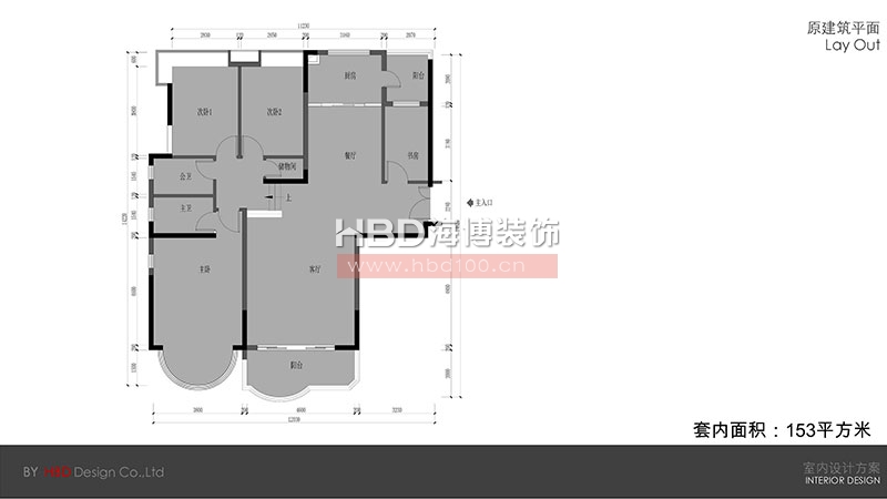
家裝住宅裝修設計概念方案 徐總云山熹景家裝住宅

家裝住宅裝修設計概念方案 徐總云山熹景家裝住宅

家裝住宅裝修設計概念方案 徐總云山熹景家裝住宅

家裝住宅裝修設計概念方案 徐總云山熹景家裝住宅

家裝住宅裝修設計概念方案 徐總云山熹景家裝住宅

家裝住宅裝修設計概念方案 徐總云山熹景家裝住宅

家裝住宅裝修設計概念方案 徐總云山熹景家裝住宅

家裝住宅裝修設計概念方案 徐總云山熹景家裝住宅

家裝住宅裝修設計概念方案 徐總云山熹景家裝住宅

家裝住宅裝修設計概念方案 徐總云山熹景家裝住宅

家裝住宅裝修設計概念方案 徐總云山熹景家裝住宅

家裝住宅裝修設計概念方案 徐總云山熹景家裝住宅

家裝住宅裝修設計概念方案 徐總云山熹景家裝住宅
- 上一案例:新中式風格家裝住宅裝修設計 海印花園家裝項目
- 下一案例:廣州家裝住宅裝修設計方案賞析 花漫灣雅居
137-1150-4887
在線咨詢
